Home
Projekte
Profil
Tätigkeitsfelder
HausPlus Immobilien
Kontakt
Blog
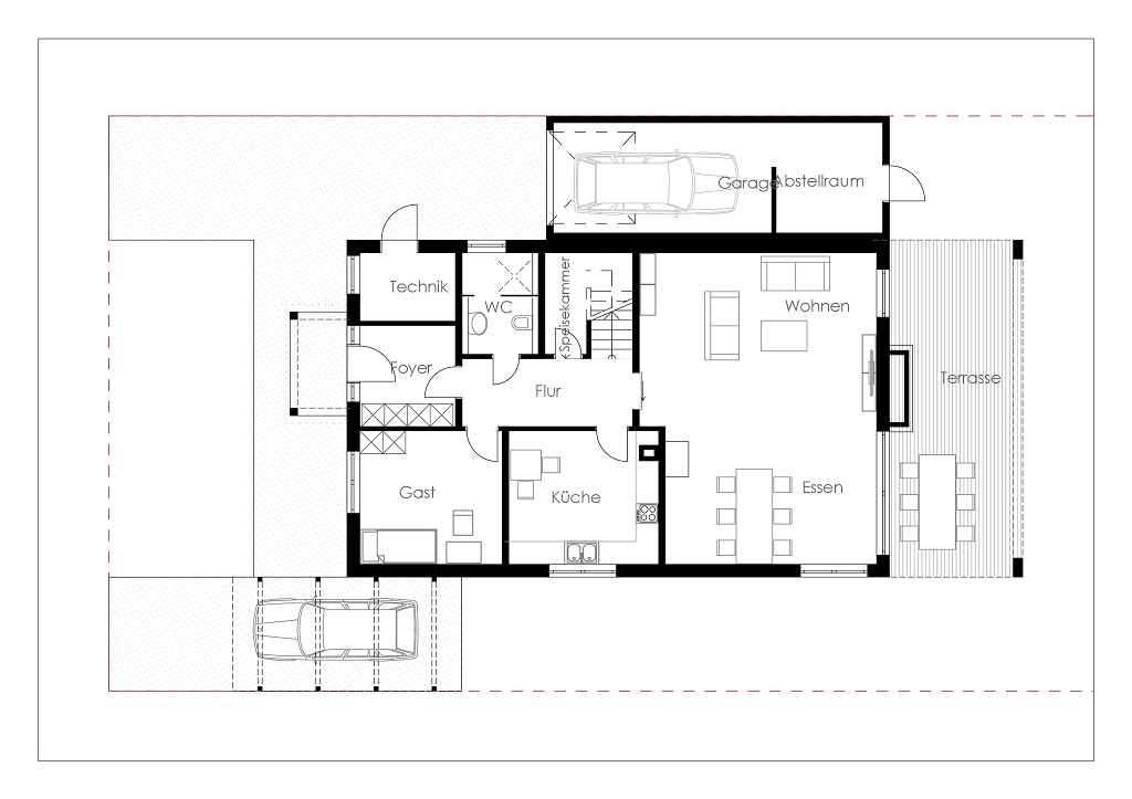
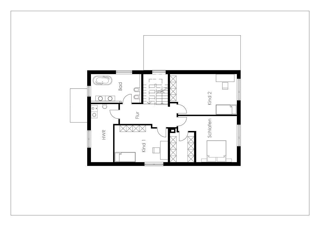
EFH Dortmund