Home
Projekte
Profil
Tätigkeitsfelder
HausPlus Immobilien
Kontakt
Blog
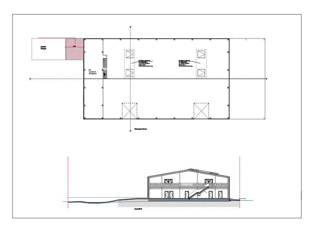
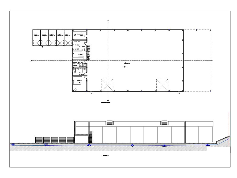
Gewerbebau Systemlagerhalle Do.-Kley
Neubau einer Systemlagerhalle.